Kamis, 15 April 2021

700 Square Foot House Plans - 700 Sq Ft One Bedroom House Plans Page 4 Line 17qq Com : 25x40 feet house plan/92 square meter house plan with beautiful elevation design best interior with low budget and easy build for every man.

700 Square Foot House Plans - 700 Sq Ft One Bedroom House Plans Page 4 Line 17qq Com : 25x40 feet house plan/92 square meter house plan with beautiful elevation design best interior with low budget and easy build for every man.. The interior floor plan is highlighted with approximately 700 square feet of living space that contains an open floor layout, a minimum of two bedrooms and one bathroom. Home » house plans » wondeful 700 square foot house plans picture. When homeowners like you are looking to build a dream home, where should you start? 25x40 feet house plan/92 square meter house plan with beautiful elevation design best interior with low budget and easy build for every man. How to convert square feet to square meters?

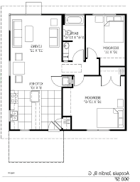
700 square feet budget : How to convert square feet to square meters? 10 lacks sit out living room dining area 2 bedroom common bathroom kitchen stair room. Square feet house plans ideal spaces. Each house plan drawing has the dimensions of the foundation, floor plans, and general information.

1 Bhk 700 Sq Ft Apartment For Sale In Shriram Sameeksha Bangalore
1 Bhk 700 Sq Ft Apartment For Sale In Shriram Sameeksha Bangalore from static.squareyards.com
25×33 square feet house plan. And if you already have a house with a large enough lot for a second not quite tiny houses, 700 to 800 square feet house plans are nevertheless near the far end of the small spectrum of modern home plans. How much will it cost to build a 750 square foot house? Covering an area of 700 square feet, it cores high on its simplicity. Simple 2 bedroom house in stylish design. Our huge inventory of house blueprints includes simple house plans, luxury home plans, duplex floor plans, garage plans, garages with apartment plans. The interior floor plan is highlighted with approximately 700 square feet of living space that contains an open floor layout, a minimum of two bedrooms and one bathroom. Home » house plans » wondeful 700 square foot house plans picture.

We live in an itty bitty house, and love it!

1 square foot (sqft) is equal to 0.09290304 square meter (sqm). Featuring a mid century modern interior, an arched glass bedroom design, minimalist decor three modern homes measuring under 65 square metres, each styled in their own very unique and lively character. Houses under 700 square feet 960 1 bedrooms batrooms on levels flo cottage floor plans tiny house craftsman style. We live in an itty bitty house, and love it! 20 x 35 sqft house plan 700 sqft house plan 20 x 35 ghar ka naksha engineer subhash beautiful house plan & house design. Assuming the plan size as 11 metres x 15 metres approximately, commercial building with maximum live loads of 4kn/sq m and column spacing at 3metre to 5 metres , the total number of columns is 4x4. This simple calculator will allow you to easily convert 700 sq ft to sq m. Modern homes under 65 square metres. Type single floor, free house plans. Home » house plans » wondeful 700 square foot house plans picture. 700 square feet cost : 10 lacks sit out living room dining area 2 bedroom common bathroom kitchen stair room. It is the size of a square that is one foot on a side.

Hi guys, do you looking for house plan for 700 sq ft. 20 x 35 sqft house plan 700 sqft house plan 20 x 35 ghar ka naksha engineer subhash beautiful house plan & house design. There is far less house to worry about in a 600 to 700 square foot property when it comes to cleaning and upkeep. Houses under 700 square feet 960 1 bedrooms batrooms on levels flo cottage floor plans tiny house craftsman style. Modern homes under 65 square metres.

3bhk House Plan 20 X 35 700 Sq Ft 78 Sq Yds 65 Sq M 78 Gaj 4k Youtube
3bhk House Plan 20 X 35 700 Sq Ft 78 Sq Yds 65 Sq M 78 Gaj 4k Youtube from i.ytimg.com
It is also a contemporary design set by arc builders. A conservative 700 square feet house floor design additionally empowers holding with relatives. And if you already have a house with a large enough lot for a second not quite tiny houses, 700 to 800 square feet house plans are nevertheless near the far end of the small spectrum of modern home plans. We live in an itty bitty house, and love it! Our first home has a mid century modern spirit. What is 700 square feet in square meters? Covering an area of 700 square feet, it cores high on its simplicity. House plans with 700 to 800 square feet also make great cabins or vacation homes.

600 to 700 square foot home plans are ideal for the single, couple, or new family that wants the bare minimum when it comes to space.

Each house plan drawing has the dimensions of the foundation, floor plans, and general information. Covering an area of 700 square feet, it cores high on its simplicity. To measure a home's square footage, sketch a floor plan of the interior. A conservative 700 square feet house floor design additionally empowers holding with relatives. Assuming the plan size as 11 metres x 15 metres approximately, commercial building with maximum live loads of 4kn/sq m and column spacing at 3metre to 5 metres , the total number of columns is 4x4. 2 bedroom west face 700 square feet house plan with interior and front elevation design reviewed by awesome house plans on september 16, 2020 rating: It likewise enables families to feel more associated with each other. Square feet house plans ideal spaces. Type single floor, free house plans. Cute small budget house 700 sq feet with plan,home plan, small budget house, modern house. How to convert square feet to square meters? Everyone is always fascinated when they learn about how small our house is for our family of 4. 50 to 75 square meters.

The square feet that the can construct is in between 500 & 1000. The interior floor plan is highlighted with approximately 700 square feet of living space that contains an open floor layout, a minimum of two bedrooms and one bathroom. How much will it cost to build a 750 square foot house? A conservative 700 square feet house floor design additionally empowers holding with relatives. Each house plan drawing has the dimensions of the foundation, floor plans, and general information.

700 Square Feet Single Floor Contemporary Home Design
700 Square Feet Single Floor Contemporary Home Design from www.home-interiors.in
Houses under 700 square feet 960 1 bedrooms batrooms on levels flo cottage floor plans tiny house craftsman style. 700 square feet budget : Imparting a space to kin manufactures great characteristics in the children as they figure out how to acclimate to their environment. Type single floor, free house plans. If you are not satisfied with the information of our plan that is given on our site or you need more to take any decision then you can ask for the blueprints of whole indian style house plan 700 sq ft, and compare the plan in different way. What is 700 square feet in square meters? This design however might make you change your mind. 1 bedroom bath 700 sq ft this is a great floor plan with large rooms and closet space please contac plans small house.

Our first home has a mid century modern spirit.

25×33 square feet house plan. Assuming the plan size as 11 metres x 15 metres approximately, commercial building with maximum live loads of 4kn/sq m and column spacing at 3metre to 5 metres , the total number of columns is 4x4. 2 bedroom west face 700 square feet house plan with interior and front elevation design reviewed by awesome house plans on september 16, 2020 rating: 20 x 35 sqft house plan 700 sqft house plan 20 x 35 ghar ka naksha engineer subhash beautiful house plan & house design. If you are not satisfied with the information of our plan that is given on our site or you need more to take any decision then you can ask for the blueprints of whole indian style house plan 700 sq ft, and compare the plan in different way. The square feet that the can construct is in between 500 & 1000. Type single floor, free house plans. How to convert square feet to square meters? House plans with 700 to 800 square feet also make great cabins or vacation homes. We consider that house design ideas are one in all great wondeful 700 square foot house plans picture of the years, we perceive that you're trying to find issues which might be associated to residence design concepts, so. What is 700 square feet in square meters? When people are building their dream house, they sometimes tend to overlook the small details and build a house plan that is too big for their lot. Square feet house plans ideal spaces.

Tidak ada komentar:

Posting Komentar