Selasa, 08 Juni 2021

Single Wide 14X70 Mobile Home Floor Plan / Marshfield Mobile Homes Floor Plans | Viewfloor.co : This is the longer 48 foot long version of the popular berger model.

Single Wide 14X70 Mobile Home Floor Plan / Marshfield Mobile Homes Floor Plans | Viewfloor.co : This is the longer 48 foot long version of the popular berger model.. Single wide mobile homes offer comfortable living at an affordable price. Select a manufacturer below to view single wide mobile home floor plans. The houses are manufactured by industry leaders we have a wide variety of floorplans that you will love! Single wide mobile homes offer comfortable living at an affordable price. A floor plan defines how you and your family will live within the space of your home.

With so many options for upgrades and beautiful homes built by leading manufacturers such as cavco. The shape is usually boxy and there are many points of entry that hinders furniture placement. Single wide mobile homes finder. Enjoy browsing our impressive collection of single wide floor plans. Single wide mobile homes offer comfortable living at an affordable price.

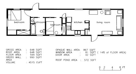
Single Wide Mobile Home Floor Plan Spring View 725CT
Single Wide Mobile Home Floor Plan Spring View 725CT from www.lovejoy-manufactured-homes.com
Trumh the delight 2/2 singlewide mobile home is a great value for the price of a new mobile home with 2 bedrooms, 2 baths and 820 sq. Single wide mobile homes offer comfortable living at an affordable price. In this video, i finish replacing the subfloor in the bathroom of this 1971 mobile home. Single wide mobile homes offer comfortable living at an affordable price. Just what everybody was waiting for. And be as large as 1,400 sq ft. The delight features a split floor plan with 2 bedrooms and 2 bath, split for comfort and convenience. Shop all single wide mobile homes for sale from arkansas home center today!

Enjoy browsing our impressive collection of single wide mobile home floor plans.

Shop all single wide mobile homes for sale from arkansas home center today! Factory select homes has many single wide mobile homes to choose for your new mobile home. Enjoy browsing our impressive collection of single wide floor plans. Single wide homes can be highly compact or very spacious, and come in many different widths, lengths, and room configurations. The width of single wide manufactured homes varies between 10 ft to 18 ft. Whether you are looking for a modest, yet spacious home for yourself or small family, there's a factory select homes series singlewide home that home built by: Take your time for a moment, see some collection of 14×70 mobile home. And be as large as 1,400 sq ft. Our single wide mobile homes, aka single sections, range from the highly compact to the very spacious and come in a variety of widths single wide mobile homes offer comfortable living at an affordable price. Enjoy browsing our impressive collection of single wide mobile home floor plans. 2 x 4 side wall construction on 16 centers (2 x 6. A mobile house doesn't always come with space to spare so a. Single wide mobile homes will measure 14 to 16 feet in width and can reach up to 80 feet in length.

Iredell | 2 beds · 1 bath · 655 sqft. Just follow the links below to browse single wides, double wides, and modular homes. Single wide mobile homes offer comfortable living at an affordable price. Our single wide mobile homes, aka single sections, range from the highly compact to the very spacious and come in a variety of widths single wide mobile homes offer comfortable living at an affordable price. Enjoy browsing our impressive collection of single wide mobile home floor plans.

Single Wide Mobile Home Floor Plans - Bestofhouse.net | #3756
Single Wide Mobile Home Floor Plans - Bestofhouse.net | #3756 from cdn.bestofhouse.net
Below are 14 best pictures collection of single wide mobile home plans photo in high resolution. These spacious designs offer a very flexible lifestyle. A single wide home, or single section home, is a floor plan with one long section rather than multiple sections joined together. Just follow the links below to browse single wides, double wides, and modular homes. Single wide mobile homes will measure 14 to 16 feet in width and can reach up to 80 feet in length. Enjoy browsing our impressive collection of single wide floor plans. In this video, i finish replacing the subfloor in the bathroom of this 1971 mobile home. Kitchen will have a stove, refridge and a dinette.

Enjoy browsing our impressive collection of single wide mobile home floor plans.

Single wide mobile homes offer comfortable living at an affordable price. 1971 single wide mobile home bathroom floor replacement part 3. Single wide mobile homes offer comfortable living at an affordable price. Single wide mobile homes offer comfortable living at an affordable price. Living rooms should be as functional as they are beautiful. Kitchen will have a stove, refridge and a dinette. Artists' renderings of homes are only representations and actual home may vary. That is, giles mobile homes floor plan. The delight features a split floor plan with 2 bedrooms and 2 bath, split for comfort and convenience. We have some best ideas of pictures for your interest, look at the picture, these are inspiring. Enjoy browsing our impressive collection of single wide floor plans. Enjoy browsing our impressive collection of single wide mobile home floor plans. This comfortable living room and kitchen/dining area create.

Single wide mobile homes will measure 14 to 16 feet in width and can reach up to 80 feet in length. Enjoy browsing our impressive collection of single wide mobile home floor plans. Single wides, also known as single sections, range from the highly compact to the very spacious and come in a variety of widths. Single wides, also known as single sections, range from the highly compact to the very spacious and come in a variety of widths. Single wides, also known as single sections, range from the highly compact to the very spacious and come in a variety of widths.

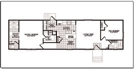
Floor Plan GS-16441A | GS Single-Section | Homes By Cavco ...
Floor Plan GS-16441A | GS Single-Section | Homes By Cavco ... from www.cavcowest.com
Explore a wide selection of sunshine homes floor plans in a variety of styles and sizes. Hamel 14 x 48 640 sqft mobile home | factory expo home centers. Interested in single wide and single section homes? Single wide mobile homes usually have living rooms in the middle of the home with the kitchen and dining room right beside them. Living rooms should be as functional as they are beautiful. Prices do not include freight cost from factory, sales/discretionary tax, tag/title/lien fees. In this video, i finish replacing the subfloor in the bathroom of this 1971 mobile home. 4 bedrooms will contain a box spring and mattress or a set of bunk beds if needed, along with a bureau.

These spacious designs offer a very flexible lifestyle.

Single wides, also known as single sections, range from the highly compact to the very spacious and come in a variety of widths. See the variety of single wide mobile home floor plans for single wide manufactured homes. Lots of floor plans to choose from! Single wides, also known as single sections, range from the highly compact to the very spacious and come in a variety of widths. Living rooms should be as functional as they are beautiful. Take your time for a moment, see some collection of 14×70 mobile home. Single wide mobile homes offer comfortable living at an affordable price. Prices do not include freight cost from factory, sales/discretionary tax, tag/title/lien fees. Interested in single wide and single section homes? Single wides, also known as single sections, range from the highly compact to the very spacious and come in a variety of widths. Select a manufacturer below to view single wide mobile home floor plans. Kitchen will have a stove, refridge and a dinette. 2 x 4 side wall construction on 16 centers (2 x 6.

Trumh the delight 2/2 singlewide mobile home is a great value for the price of a new mobile home with 2 bedrooms, 2 baths and 820 sq 14x70 mobile home floor plan. A mobile house doesn't always come with space to spare so a.

Tidak ada komentar:

Posting Komentar